Design

We Must Rebuild Salt Lake City’s Water Reclamation Facility

  • Water flows from the Wasatch Mountains
  • The water is used by residents, businesses and industry
  • The water then travels through pipes to the Water Reclamation Facility where it goes through a treatment process
  • The treated water is then released back into the Great Salt Lake where the water evaporates and turns into rain and snow, and the cycle begins anew
Series of images in a flow diagram showing the water cycle
Materials that reflect the "mountain" stage of the water cycle
Materials that reflect the "city" stage of the water cycle
Materials that reflect the "reclamation" stage of the water cycle
Materials that reflect the "lake" stage of the water cycle

Additional Aspects of the Plan

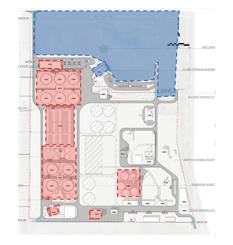
Site plan highlighting areas for process and operational buildings and adjacent wetland features

Process & Operational Buildings
Administration Buildings & Wetlands

This provides an opportunity for:

  • Public meeting space
  • Educational elements
  • Public access to wetlands
Participants reviewing and organizing feedback notes during a community outreach workshop.

Through outreach efforts, we heard the public would like access to the polishing wetlands and for the wetlands to have boardwalks or paths, viewing areas, educational signage and displays. Community members also asked that this area connect to local trails and other outdoor recreational offerings, such as the Jordan River Parkway and the Rose Park Golf Course.

Water Reclamation Facility Sustainability Elements

Salt Lake City has wisely invested in its green mission to help our community conserve resources, reduce pollution, minimize carbon emissions, and ensure a healthy, sustainable future. The City’s approach to sustainability and programs to support it have made us a sustainability leader among American cities.

As a sustainability leader, the City is always pushing to accomplish more. We are evaluating various sustainability measures to improve effectiveness and efficiency of the new Water Reclamation Facility. We’re committed to building a model Facility, while also being prudent with public funds.

We’ve established a clear plan to integrate the sustainability elements that make the most sense for each part of the new Water Reclamation Facility. Our process is to continuously assess all planning, design and construction decisions to optimize long term community value.

Sustainable Return on Investment (sROI)

We are using an innovative evaluation approach to identify the most cost-effective means to achieve project objectives within risk tolerances and life-cycle triple bottom line (TBL) cost constraints. sROI has been used to support all major design decisions and will be used to assist with the selection of LEED and Envision credits to pursue. Promote vest value across project life cycle.

LEED

The Leadership in Energy and Environmental Design (LEED) Green Building Rating System is a voluntary, consensus-based, market-driven, high performance building rating system developed by the U.S. Green Building Council. Projects using LEED seek to achieve a level of Certified, Silver, Gold or Platinum based on what is implemented and points achieved. Initially reviewed this and will have this focus on the Redwood Campus.

Envision

We are piloting an infrastructure-specific green rating system known as Envision, both to capture the sustainable benefits of looking beyond the buildings and to help determine how beneficial Envision could be for other City projects. This system is unique because it looks at the more specialized equipment and structures needed to treat and convey water, and at the project comprehensively. This means designing for increased resiliency, thinking about potential impacts from climate change and ensuring that all the entities involved have certain commitments to sustainable practices. The Envision rating system encourages stakeholder feedback and interaction. This will be applied site wide to promote sustainability, equity, and resilience.

We’ve established a clear plan to integrate the sustainability elements that make the most sense for each part of the new Water Reclamation Facility. Our process is to continuously assess all planning, design and construction decisions to optimize long term community value.

Water Conservation

Investing in energy efficient solutions can reduce the cost of operating and maintaining the new Facility waste aligns with the City’s goals of reducing its overall energy use, including electricity and natural gas. Renewable energy options may include a mix of on-site and off-site options and alternatives to conventional heating and cooling equipment. The existing plant captures digester gas from the treatment process and uses it to provide heat and electricity for some of the plant’s needs, an option being explored for the new Facility as well.

Sustainable Materials

For major site materials like concrete, soil and pipe, we are evaluating options to use recycled and local materials. These options will be reviewed and incorporated into the new Facility as the design progresses.

Green Infrastructure

Stormwater runoff from non-process areas will be redirected to a re-configured wetland. This, along with other modifications to the wetland, will help to reduce the amount of run off that would have to be treated otherwise. We are considering including a public educational component of the new administration building, that can show case sustainability practices such as:

Rain garden planted with shrubs and flowers beside a sidewalk

Rain Gardens: Planting native shrubs, perennials and flowers in a small depression to temporarily hold and soak in rainwater runoff.

Permeable pavement parking area allowing rainwater to drain between surfaces

Permeable Parking Lots: Allow rainwater to soak into the ground through the pavement surface.

Rainwater storage tanks connected to a building for collecting roof runoff

Rainwater Harvesting: Catching and holding rain for use at another time, typically from building rooftops.

Channel directing rainwater flow toward planted areas

Re-Directing Rainfall: Moving rainwater to specific areas for irrigation purposes.

Constructed wetland with vegetation used

Treatment Wetlands: Using natural processes involving wetland vegetation, soils, and their associated microbial assemblages to improve water quality.